Imagine

Parade Model #9

Straub Homes


Model #V2 - Virtual Model

The Peach Orchard
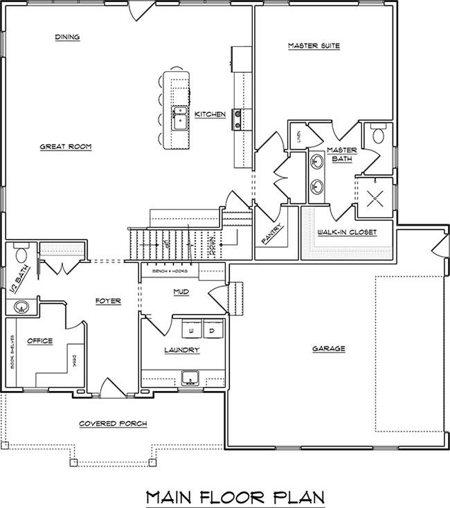
Single-family 1st floor master
2,765 sq.ft. / 4 BR / 3 BA
Build from TBD
Model #V2 - Virtual Model

DIRECTIONS



Please see below video for virtual tour of this home





Model-9V-Straub-FP1




Model-9V-Straub-FP2


.  First floor master suite
.  Large open floor plan - open kitchen and great room
.  First floor laundry room
.  Home office
.  Oversized garage, mud room with cubbies

Click any photo below to start slide show




Straub Homes


Straub Homes
Return to Parade List
Previous House
View Builder Website
Copyright©2025 Medina County HBA | P.O. Box #233 | Valley City, OH 44280 | p/330-725-2371 or p/330-483-0076

ID Creative Group, Ltd Designed and Hosted by ID Creative Group, Ltd
The Medina County Home Builders Association (MCHBA) is an organization of Home Builders, developers, and providers of services committed to promoting and protecting the growth of the Medina County housing industry for both our builder members and the consumer.